『钢销式结构』
此结构属石材干挂技术第一代产品。此结构简便,但板面为局部受力,易产生挤压应力,板块抗变形能力不好,且板块破损后不宜更换,适用于低层建筑。
『短槽式结构』
此结构属石材干挂技术第二代产品。是指在石板的上下端面铣成半圆槽口,采用挂件固定,此结构受力较销钉合理,较易吸收变形,但板块破损后不宜更换,适用于低层建筑。
『通槽式结构』
此结构是在石板上下端面开设通长槽口,采用铝合金通长勾板固定,其特点是受力合理,可靠性高,可适用于高层建筑。
『背栓式结构』
此结构属石材干挂技术第三代产品,是目前世界上较先进技术,是国内石材幕墙技术发展的方向,其特点是实现石材的无应力加工,石材背面采用不锈钢背栓连接,连接强度高,板块抗变形能力强,且板块破损后可实现更换要求,适用于高层建筑。
石材选择的设计基本要求
1.幕墙用石材宜选用花岗岩,可选用大理石、石灰岩、石英砂岩等。
2.石材面板的性能应满足建筑物所在地的地理、气候、环境及幕墙功能的要求。
3.弯曲强度标准值小于8.0MPA的石材面板,应采取附加构造措施保证面板的可靠性。
4.石材的弯曲强度等应满足下表:







背栓式-背栓形式
齐平式锚栓特点
1.锚栓的锚固深度是定值
2.不能消除石材加工厚度误差
3.如果石材存在厚度误差,使用齐平式锚栓时,其支撑龙骨体系须允许在水平方向有一定的调节量
4.用于柱面、转角板及石材幕墙的安装,适用于各种硬质及软质石材
间距式锚栓特点
1.调整钻孔机器使每块石材的保留厚度为定值
2.可消除一定石材的厚度误差
3.用于有石材加工厚度误差的石材幕墙的大面积安装

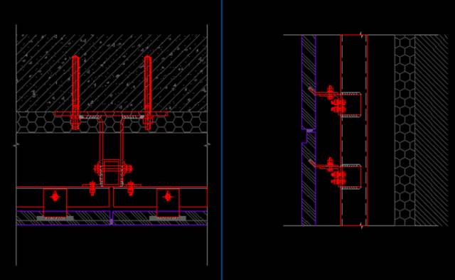
龙骨连接节点


不锈钢挂件节点


铝合金短槽节点



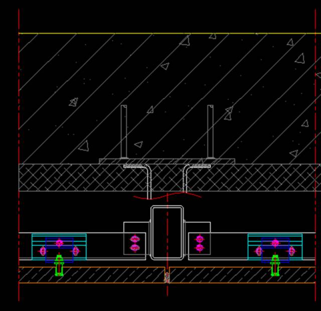
背栓式节点


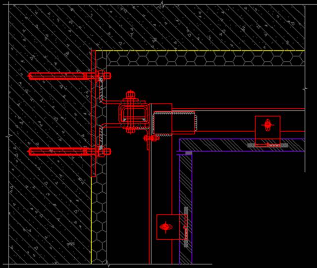
转角节点







